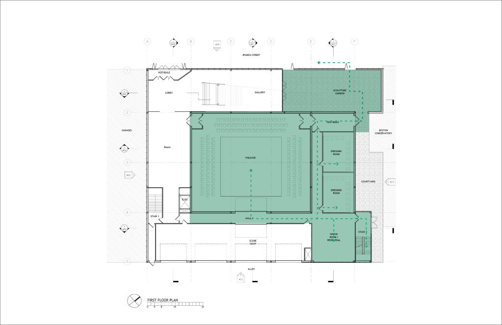
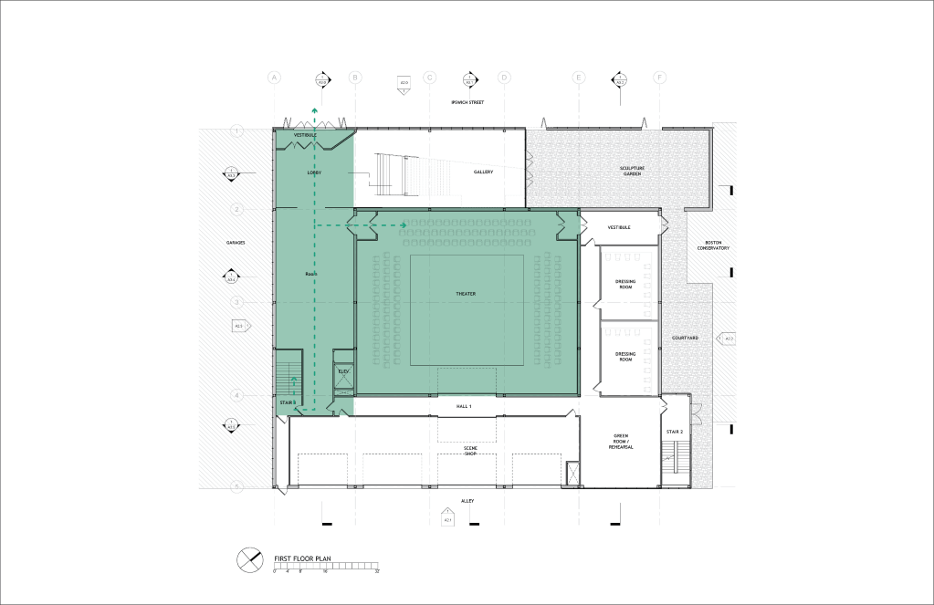
In this comprehensive studio, we designed a fully integrated black box theater in the Fenway neighborhood of Boston. The facilities included backstage production areas, theater spaces and acting resources, and a public facing lobby and recreation spaces. The goal of this studio was to dive into the detail work of particular aspects of our design. My project featured a monumental stair that rose multiple stories and transformed from interior to exterior. The stair served as a visual guide for the public, pulling them through the lobby space and up into the third floor café and restaurant spaces. The stair is sheathed in translucent polycarbonate so that it illuminates like a lantern at night to fit in with the vibrant nightlife of the area.
















































